This building is located next to the Caravaca de la Cruz town hall, in Plaza del Arco. Until the mid-19th century it was the Governors' House and later the Artistic Circle was established there. In 2023, on the occasion of the first centenary of the foundation of the local Mercantile Circle, the basic project for adapting the property to the new reality was presented. Currently, the members of the Mercantile Circle share the building with the festive group Reales Halcones Negros del Desierto, participants in the city's Moors and Christians festivities.
The building
The property is listed in the General Urban Planning Plan of Caravaca de la Cruz with grade 2: structural conservation. Notable features include the imperial staircase accessed through a triple classical arcade and the iconic hall of mirrors. The building combines traditional wooden floor structures with load-bearing walls and cast iron columns. In the 1990s it underwent some unfortunate interventions whose impact the 2023 planned intervention aims to minimize.
The intervention
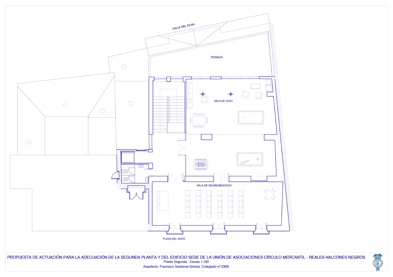
First, a preliminary study of the building was drafted consisting of a script with six actions whose objective is to update the property to meet current safety and accessibility needs and requirements in such a way that preserves its cultural value. The basic project develops the first action which consists of providing the building with an elevator, reorganizing the spaces to enhance its most relevant historical and artistic elements, and providing use to the second floor through the design of a games and reading room.
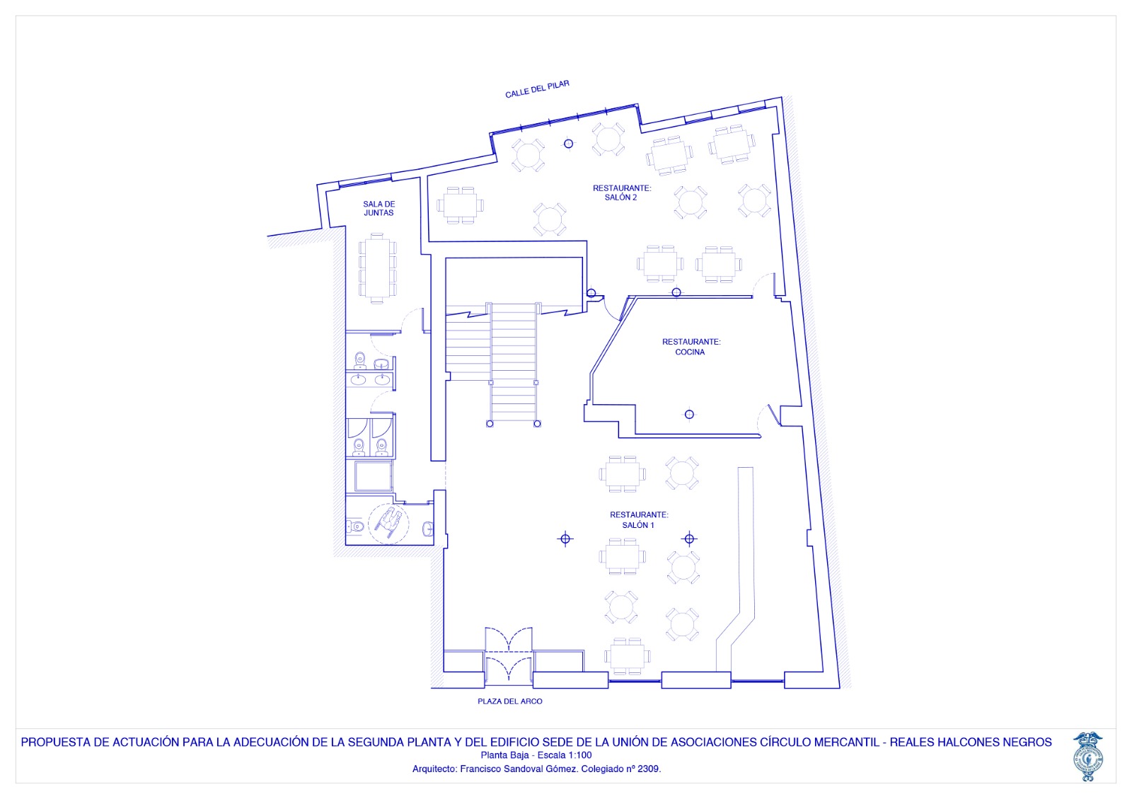
Among the main challenges of the project were generating two celebration halls on the first floor that would reconcile the diversity of events that the property might host and respond to the intergenerational nature of its users, or creating restrooms for people with reduced mobility in an intricate space that currently lacks them.





